東方太陽城
更新時間:2017-02-04
| 設計風格 | 美式 | 戶型案例 | 平層 | 案例面積 | 160 |
|---|---|---|---|---|---|
| 樓盤名稱 | 東方太陽城 | 所在城市 | 北京 | 案例造價 | 40萬 |
| 設計師 | 任璐 | ||||

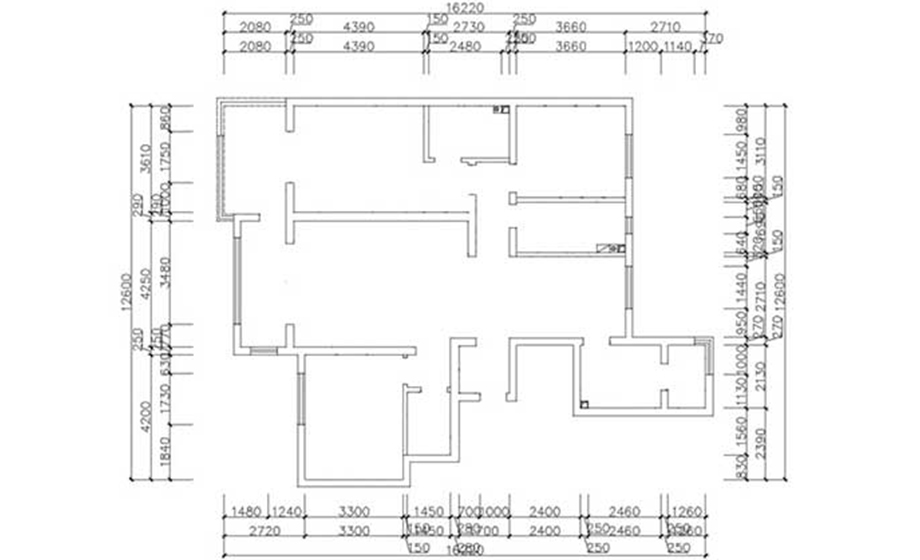
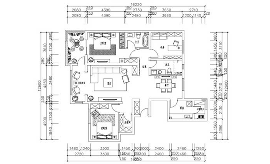
案例說明:
本案的風格為輕美式,裝修的特點是簡潔實用,色彩是明亮環保,是非常典型的“輕裝修、重裝飾”的風格。案例中的美式家具最迷人之處還在于造型、紋路、雕飾和色調細膩高貴。客廳:客廳的電視背景墻與沙發背景墻形成對比,不會顯得枯燥死板,顏色上輕重搭配,使整個空間更有層次感。
餐廳:餐廳的背景墻與沙發背景墻形成呼應的狀態,使房屋效果更加整體。地面也做了功能區域區分,不會讓人產生區域錯覺。
主臥:主臥一溫馨舒適為主,以床頭背景墻和吊頂的部分造型突出房間里的設計感,又不會使人覺得繁雜,擁擠。
廚房:廚房本身相對空間較小,所以將原有的陽臺的空間進行利用,規劃到廚房的使用功能上來,這樣增加廚房的操作區域。
同風格案例:更多>>
同面積案例:














京公網安備 11010802032436號